Woonoppervlakte
Circa 110 m²
Perceeloppervlakte
Circa 59 m²
Bouwjaar
Gebouwd in 2001
Aantal kamers
5 kamers (2 slaapkamers)

Damstraat 84

4701 GR, Roosendaal (Noord-Brabant)

Wonen in het bruisende centrum van Roosendaal, mét een eigen garage en een zonnig dakterras? Deze ruime drive-in woning aan de Damstraat 84 biedt het allemaal! Met een royale woonkamer, een sfeervolle halfopen keuken, twee slaapkamers, nette badkamer en maar liefst drie verdiepingen aan woonruimte, is dit de ideale woning voor wie comfortabel én centraal wil wonen. Benieuwd? Plan snel een bezichtiging en ontdek het zelf!

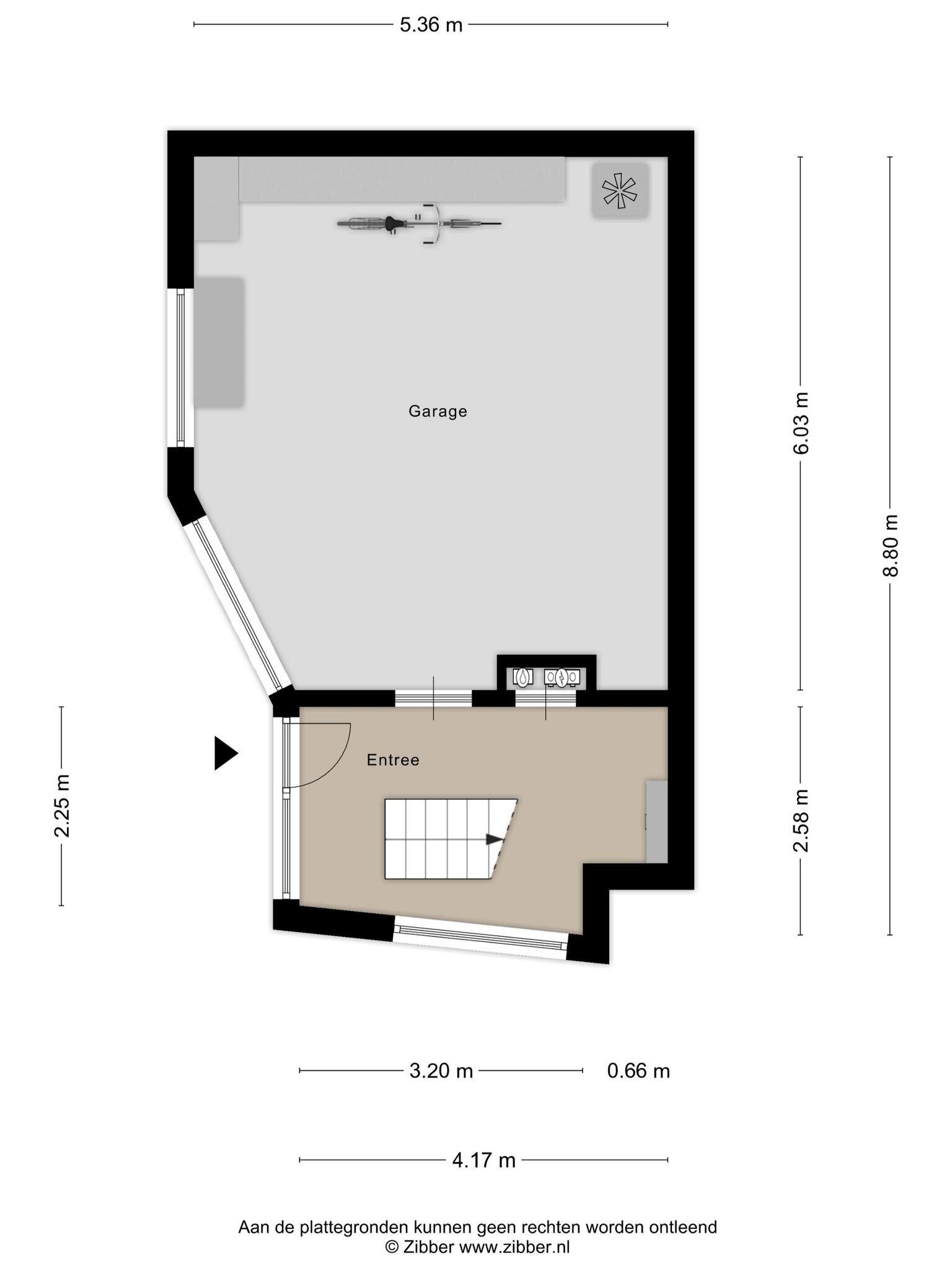
Entree & Garage
Bij aankomst parkeer je je auto in je eigen garage, een groot pluspunt in het centrum! Via de hal heb je toegang tot de garage en de trap naar de eerste verdieping.

Wonen & Koken
De overloop leidt je naar de ruime woonkamer, waar de grote raampartijen aan de voorzijde zorgen voor een mooie lichtinval. De laminaatvloer en neutrale afwerking maken dit een sfeervolle ruimte. De halfopen keuken in houtlook is van alle gemakken voorzien, met een inductiekookplaat, combi-oven, koelkast en vaatwasser. Op deze verdieping bevindt zich ook een apart toilet.

Slapen, dromen & douchen
Hier vind je twee slaapkamers, waaronder een ruime en lichte masterbedroom. De tweede kamer is ideaal als kinderkamer of werkkamer. De badkamer is volledig betegeld en voorzien van een heerlijk ligbad, douche en een wastafel. Ook is er een apart toilet op de overloop.

Werken & Wasruimte
De derde verdieping biedt een ruime overloop, waar je gemakkelijk een werkplek kunt creëren. Daarnaast is er een handige berging met aansluiting voor de wasmachine en droger.

Buiten – Dakterras
Genieten van de zon? Het ruime, betegelde dakterras biedt voldoende plek voor een loungebank of eettafel. Hier kun je in alle rust ontspannen met een kop koffie of een goed glas wijn.

Perfecte locatie
Wonen in het centrum van Roosendaal betekent dat je alle voorzieningen binnen handbereik hebt. Winkels, restaurants en het treinstation zijn op loopafstand. Ook ben je snel op de uitvalswegen richting Breda en Antwerpen.

Toelichtingsclausule NEN2580:
De Meetinstructie is gebaseerd op de NEN2580. De Meetinstructie is bedoeld om een meer eenduidige manier van meten toe te passen voor het geven van een indicatie van de gebruiksoppervlakte. De Meetinstructie sluit verschillen in meetuitkomsten niet volledig uit, door bijvoorbeeld interpretatieverschillen, afrondingen of beperkingen bij het uitvoeren van de meting.

Plattegronden

Overdracht

Vraagprijs
€ 300.000 k.k.
Status
Verkocht
Aanvaarding
In overleg

Bouw

Object type
Eengezinswoning, hoekwoning
Soort bouw
Bestaande bouw
Bouwjaar
2001
Soort dak
Plat dak

Oppervlakte en inhoud

Woonoppervlakte
110 m²
Perceeloppervlakte
59 m²
Inhoud
499 m³
Overige inpandige ruimte
31 m²
Gebouwgeb. buitenruimte
30 m²

Indeling

Aantal kamers
5 kamers (2 slaapkamers)
Aantal badkamers
1 badkamer
Badkamervoorzieningen
Ligbad, douche, wastafel
Aantal woonlagen
4 woonlagen
Voorzieningen
Mechanische ventilatie

Energie

Energielabel
B
Energielabel registratie
25-02-2025
Isolatie
Dakisolatie, muurisolatie, dubbel glas, hr glas
Verwarming
Cv-ketel
Warm water
Cv-ketel
Cv ketel
Remeha combiketel gas gestookt uit 2021 (eigendom)

Buitenruimte

Ligging
In centrum, in woonwijk
Balkon / dakterras
Dakterras
Tuin
Zonneterras

Garage

Soort garage
Inpandig
Capaciteit
1 auto

Parkeergelegenheid

Soort parkeergelegenheid
Openbaar parkeren, op eigen terrein

Energieverbruik in Roosendaal

Energielabel deze woning

Energielabel B

Publicatie energielabel: 25-02-2025

Stroomverbruik per jaar

2970 kWh

(Gemiddelde hoekwoning in Roosendaal)

Gasverbruik per jaar

1280 m³

(Gemiddelde hoekwoning in Roosendaal)

* Cijfers zijn afkomstig van het CBS en bedoeld als indicatie en kunnen verschillen voor deze woning

Indicatie hypotheeklasten

Eigen inleg:
Spaargeld / overwaarde

Rente:
Laagste 10-jaars rente

Laagste 10-jaars rente

2,71% - Centraal Beheer Groen... - NHG


3,02% - Centraal Beheer Groen... - 80%

Laagste 20-jaars rente

3,19% - Centraal Beheer Groen... - NHG


3,31% - Centraal Beheer Groen... - 80%

Laagste 30-jaars rente

3,34% - Centraal Beheer Groen... - NHG


3,47% - Centraal Beheer Groen... - 80%


Hypotheek:

Bruto maandlasten: € 0 p/m

Netto maandlasten: € 0 p/m

Hoe berekenen we dit?

Het rentepercentage is gebaseerd op de laagste 10-jaars vaste rente voor één hypotheekdeel. De vermelde rente (2.71% met NHG) is gecontroleerd op 28-04-2025. Deze berekening is gebaseerd op een annuïteitenhypotheek die volledig wordt afgelost, waarbij de maandlasten gedurende de gehele looptijd gelijk blijven. De werkelijke rente en netto maandlasten kunnen variëren, afhankelijk van uw persoonlijke situatie en de hypotheekverstrekker. Raadpleeg een financieel adviseur voor een nauwkeurige berekening en advies. Aan deze berekening kunnen geen rechten worden ontleend; het dient enkel als indicatie.

Documentatie

Zonnegrenzen bekijken

Op de kaart

Inwoners in Roosendaal

Cijfers voor postcodegebied 4701

Totaal aantal inwoners
6305 inwoners
Mannen
51%
Vrouwen
49%

Inwoners in Roosendaal

Cijfers voor postcodegebied 4701

tot 15 jaar
9%
15 tot 25 jaar
10%
25 tot 35 jaar
28%
45 tot 65 jaar
28%
65 en ouder
25%

Huishoudens in Roosendaal

Cijfers voor postcodegebied 4701

Eenpersoons zonder kinderen
55%
Meerpersoons zonder kinderen
28%
Huishoudens zonder kinderen
83%

Huishoudens in Roosendaal

Cijfers voor postcodegebied 4701

Huishoudens met één kind
6%
Huishoudens met meerdere kinderen
11%
Huishoudens met kinderen
17%

Woningen in Roosendaal

Cijfers voor postcodegebied 4701

Woningen voor 1945
36%
Woningen tussen 1945 en 1965
15%
Woningen tussen 1965 en 1975
4%
Woningen tussen 1975 en 1985
8%
Woningen tussen 1985 en 1995
11%

Woningen in Roosendaal

Cijfers voor postcodegebied 4701

Woningen tussen 1995 en 2005
15%
Woningen tussen 2005 en 2015
9%
Woningen na 2015
2%
Huurwoningen
50%
Koopwoningen
50%

Overige in Roosendaal

Cijfers voor postcodegebied 4701

Gemiddelde WOZ waarde
€ 195.000,-
Personen onder de 65 met uitkering
9%

Overige in Roosendaal

Cijfers voor postcodegebied 4701

Adressen per km²
2901
Stedelijkheid (schaal 1 op 5)
100%
Postcode kaart 4701 Gemeente kaart roosendaal

Korte feiten over Roosendaal

Roosendaal (uitspraakⓘ) is een stad in de Nederlandse provincie Noord-Brabant, en de grootste plaats binnen de gelijknamige gemeente Roosendaal.

Indien u vragen heeft of u wilt een bezichtiging inplannen, dan kunt u gebruik maken van het formulier hiernaast. Er zal daarna op korte termijn contact met u worden opgenomen.

Vakidioten met een passie voor vastgoed

Bij C&R Makelaars draait alles om jou en je woning. Wij zijn een frisse, energieke generatie makelaars met een passie voor mensen en de woningmarkt.

We geloven in een persoonlijke aanpak zonder poespas: eerlijk, transparant en altijd met een flinke dosis enthousiasme. Het verkopen van je huis is een belangrijke stap, en daarom begeleiden we je op een manier die bij jou past, van begin tot eind.

Met onze diepgaande kennis van de lokale markt geven we je waardevol advies dat perfect aansluit bij jouw situatie én dat van potentiële kopers.

Daarnaast staat ons creatieve team van vastgoedmarketeers klaar om jouw woning in de schijnwerpers te zetten. Met slimme en doordachte strategieën zorgen we ervoor dat je huis opvalt en het maximale resultaat behaalt.

Jouw tevredenheid is ons einddoel. We zetten alles op alles om je verwachtingen te overtreffen. Nieuwsgierig naar ons team? Klik op de button hieronder en maak kennis met ons!

Vakidioten met een passie voor vastgoed
Reviews C&R Makelaars

Damstraat 84, Roosendaal

€ 300.000 k.k. - Verkocht

Helaas, deze woning is verkocht!

Net te laat, deze woning is al verkocht. Laat een zoekopdracht bij ons achter zodat wij u direct kunnen helpen wanneer er nieuw aanbod beschikbaar komt.